20x15 Meter First floor And Second Floor Apartment Plan DWG File
Description
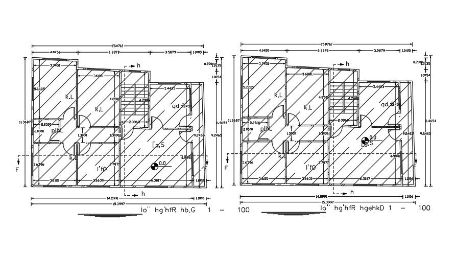
The measurement detail of the 20x15 Meter apartment plan AutoCAD drawing is given in this file. On each floor, one house is available. These houses are consist of the kitchen, living room, master bedroom with the attached toilet, guest room, kid’s room, and common bathroom. For more details download the AutoCAD file from our website.
Uploaded by:
K.H.J
Jani

