Manhole Plan Of House Plan CAD File
Description
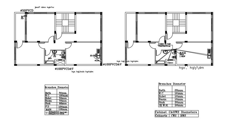
The drainage plan is given in this cad file. There is a 2d plan is available. In this plan, there is manhole detail and inlet-outlet details are also available. In this plan, there is manholes' detail is available. Thank you for downloading the AutoCAD drawing file and other CAD program files from our website. Visit CADBULL.COM Site.
File Type:
DWG
File Size:
759 KB
Category::
Interior Design
Sub Category::
Architectural Bathrooms And Interiors
type:
Free
Uploaded by:
K.H.J
Jani

