Elevation Of 14x9 Meter Apartment DWG File
Description
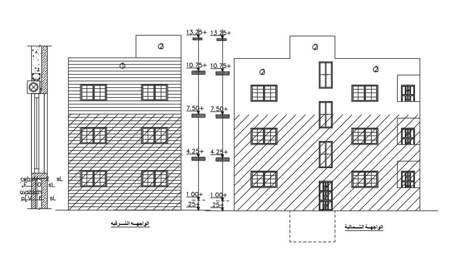
Elevations Of 14x9 Meter apartment DWG File shown in the file. the front elevation and Back Elevation Of the Elevation Building AutoCAD File are shown in this drawing file. The front elevation and back elevation of the building includes window and door sizes. Thank you for downloading the AutoCAD drawing file and other CAD program files from our website. Visit CADBULL.COM Site.
Uploaded by:
K.H.J
Jani

