15x20 Meter 4 BHK Furniture Layout Of Apartment CAD File
Description
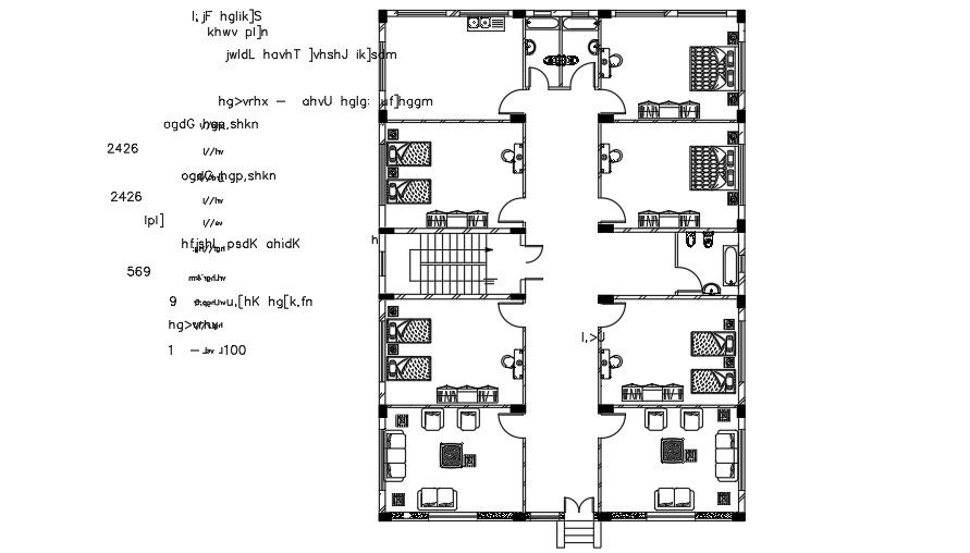
4 BHK Furniture Layout Of house Plan design layout shows a 15x20 meter size. 2 BHK Furniture Layout Of house Plan Layout includes column placement, 4 bedrooms, living room, kitchen, dining area, and staircase is available. centerline plan is also available in this file. 4 BHK Furniture Layout Of house Plan dimensions are in a meter. Furniture Layout is available. Thank you for downloading the AutoCAD drawing file and other CAD program files from our website. Visit CADBULL.COM Site.
Uploaded by:
K.H.J
Jani

