Section Of 14x18 Meter Apartment Building DWG File
Description
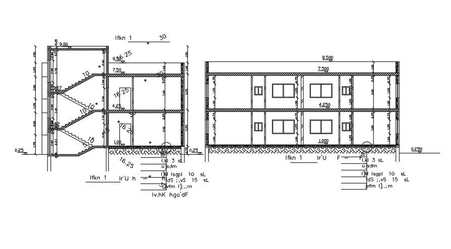
sections Of the house Building AutoCAD files are shown in this drawing file. This is a house-building section drawing. The sections of the house building include window and door sizes and staircase sections with all dimensions. Beam depth is 0.15 Meter. levels are shown in this file. Section of house building plan shows detail of ground section detail. Thank you for downloading the AutoCAD drawing file and other CAD program files from our website. Visit CADBULL.COM Site.
Uploaded by:
K.H.J
Jani

