19x10 Meter Apartment Center Line Plan DWG File
Description
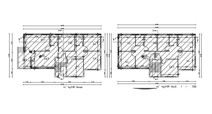
Ground Floor And First Floor Plan design layout shows a 19x10 meter size Ground Floor And First Floor Plan Layout includes column placement, 5 bedrooms, living room, kitchen, dining area, and staircase is available. centerline plan is also available in this file. Ground Floor And First Floor Plan dimensions are in a meter. Thank you for downloading the AutoCAD drawing file and other CAD program files from our website. Visit CADBULL.COM Site.
Uploaded by:
K.H.J
Jani

