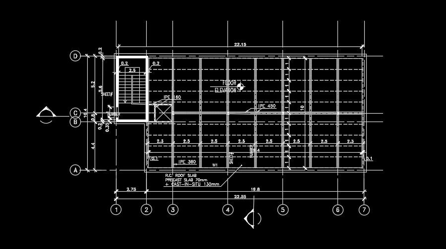
22x10m industrial plan of the slab layout detail drawing
Description
22x10m industrial plan of the slab layout detail drawing is given in this AutoCAD drawing model. The thickness of the solid slab is 150mm. For more details download the AutoCAD 2D drawing file for free.
Uploaded by:
