11x14m architecture house plan
Description
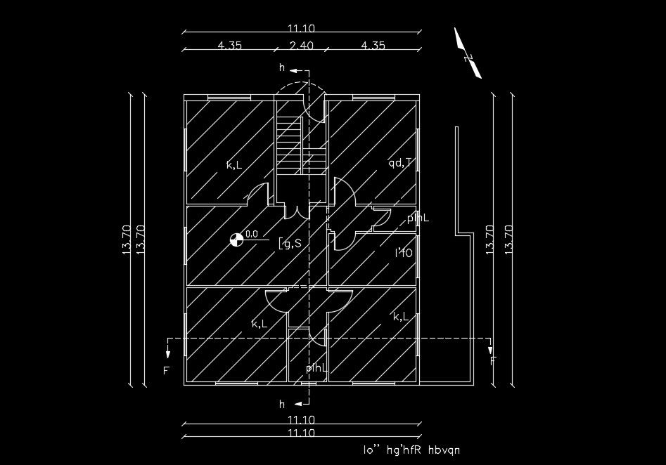
11x14m architecture house plan is given in this AutoCAD drawing model. The living room, kitchen, drawing room, guest room, master bedroom, kid’s room, and two common bathrooms are available on this plan. For more details download the AutoCAD drawing model.
Uploaded by:

