The beam cum column layout of the 14x14m house plan
Description
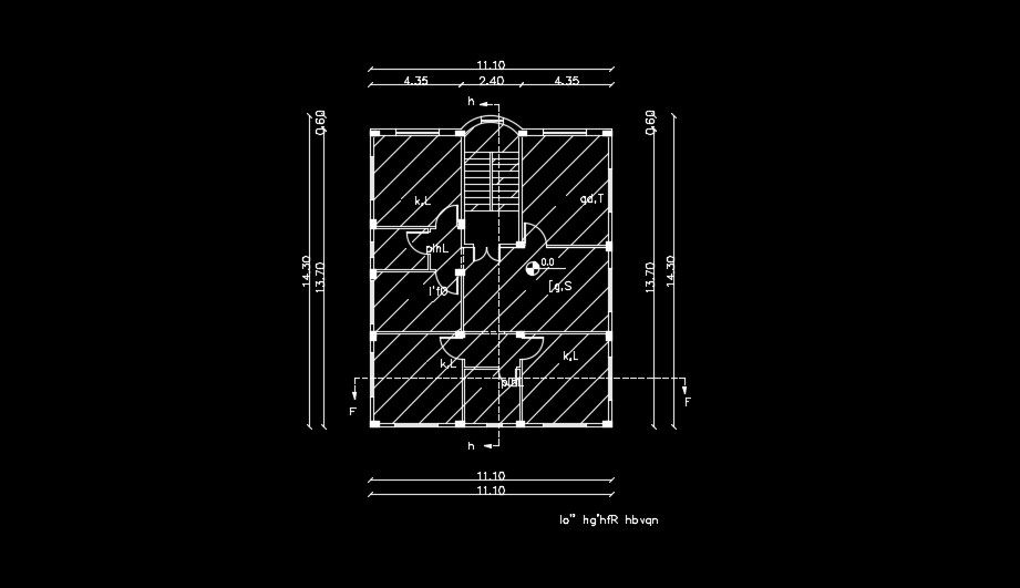
The beam cum column layout of the 14x14m house plan is given in this AutoCAD drawing model. This is G+ 3 house building with 3bhk. The living room, kitchen, dining area, master bedroom, kid’s room, guest room, and common bathroom are available. For more details download the AutoCAD drawing model.
Uploaded by:

