17x10m house plan is given in this AutoCAD drawing model
Description
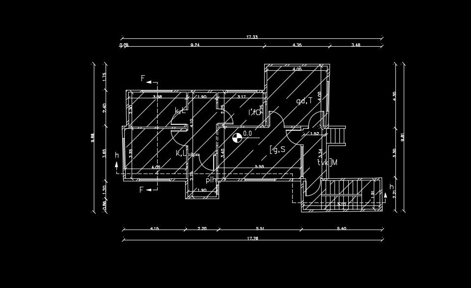
17x10m house plan is given in this AutoCAD drawing model. This is G+ 1 residential building. The hall, kitchen, store room, master bedroom, study room, and common bathroom are available. The staircase is provided inside of a home. For more details download the AutoCAD drawing model.
Uploaded by:
