300x200cm foundation view download now
Description
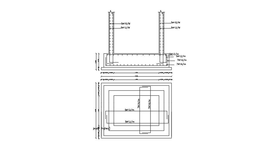
300x200cm foundation view is given in this AutoCAD file. A section view of the column has been given in this model. 500x250mm, and 400x200mm column view is given. Reinforcement details are mentioned. For more details download the AutoCAD drawing model.
Uploaded by:
K.H.J
Jani

