Furniture Layout Of 25x27 meter 3 BHK House AutoCAD File
Description
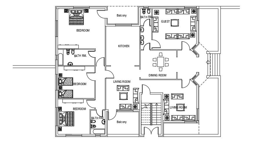
3 BHK Furniture Layout Of House Plan design layout shows a 25x27 meter size. 3 BHK Furniture Layout Of House Plan Layout includes 3 bedrooms, living room, kitchen, dining area, and staircase is available. centerline plan is also available in this file. 3 BHK Furniture Layout Of House Plan dimensions are in a meter. Furniture Layout is available. Thank you for downloading the AutoCAD drawing file and other CAD program files from our website. Visit CADBULL.COM Site.
Uploaded by:
K.H.J
Jani

