20x15 Meter Apartment First Floor Plan AutoCAD DWG File

20x15 Meter Apartment  First Floor Plan AutoCAD DWG File
Profile

Uploaded by:

K.H.J

Jani

Description
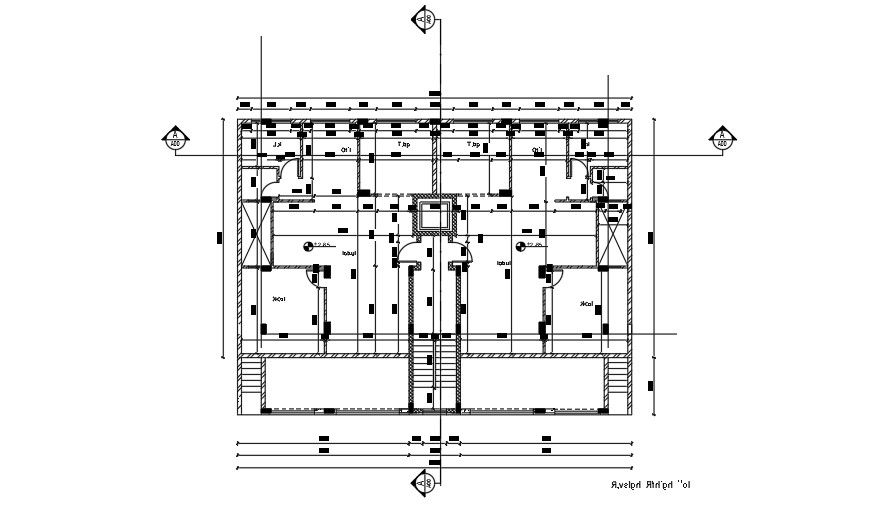
The Apartment First Floor Plan layout shows a 20x15 meter size. Apartment First Floor Plan Layout includes column placement, 2 bedrooms, living room, kitchen, dining area, and staircase is available. centerline plan is also available in this file. Apartment First Floor Plan dimensions are in a meter. Thank you for downloading the AutoCAD drawing file and other CAD program files from our website. Visit CADBULL.COM Site.
Profile

Uploaded by:

K.H.J

Jani

find Latest

Related Files