Electrical Plan Of 15x11 Meter House Plan AutoCAD File
Description
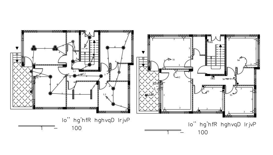
Electric Plan Of house layout plan CAD drawing shows house Plan which ceiling lights, and wiring connection detail. Electric Plan Of house electrical plan drawing DWG file. Thank you for downloading the AutoCAD drawing file and other CAD program files from our website. Visit CADBULL.COM Site.
Uploaded by:
K.H.J
Jani
