10x10 Meter Apartment Shop Plan AutoCAD Layout
Description
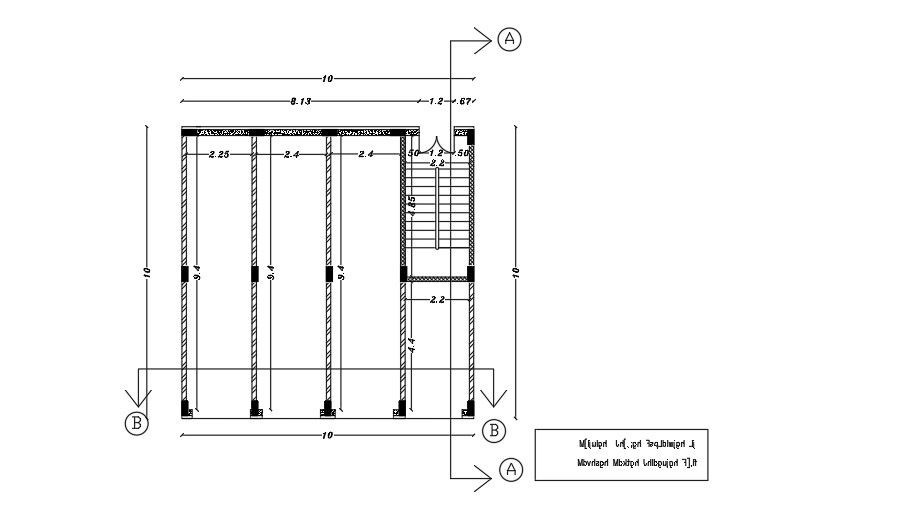
shop plan AutoCAD File is shown in the file. The layout includes 4 Shops. dimensions are in a meter. Cente line plan and column detail are available. Thank you for downloading the AutoCAD drawing file and other CAD program files from our website. Visit CADBULL.COM Site.
Uploaded by:
K.H.J
Jani
