20x19 Meter Ground Floor House Layout CAD File
Description
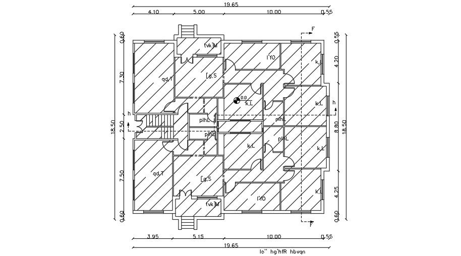
3 BHK House Ground Floor Plan layout shows 20x19 Meter In Size.3 BHK House Ground Floor Plan Layout includes column placement, 3 bedrooms, living room, kitchen, dining area, and staircase is available. centerline plan is also available in this file. 3 BHK House Plan dimensions are in a meter. Thank you for downloading the AutoCAD drawing file and other CAD program files from our website. Visit CADBULL.COM Site.
Uploaded by:
K.H.J
Jani
