22x11 Meter 4 BHK Apartment Building Furniture Layout Plan
Description
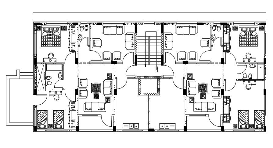
4 BHK Apartment Building Furniture Layout Plan shows a 22x11 meter size. 4 BHK Apartment Building Furniture Layout Plan includes 4 bedrooms, living room, kitchen, dining area, and staircase is available. centerline plan is also available in this file. 4 BHK Apartment Building Furniture Layout Plan dimensions are in a meter. Thank you for downloading the AutoCAD drawing file and other CAD program files from our website. Visit CADBULL.COM Site.
Uploaded by:
K.H.J
Jani

