Drainage Plan Layout Of 22x11 Meter Apartment DWG File
Description
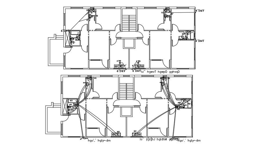
The drainage Plan Layout shows a 22x11 meter size. Drainage Plan Layout includes 2 bedrooms, a living room, kitchen, dining area, and staircase is available. Drainage Plan Layout Available in this DWG File. thank you for downloading the AutoCAD drawing file and other CAD program files from our website. Visit CADBULL.COM Site.
Uploaded by:
K.H.J
Jani

