Kitchen And Toilet Layout Of 16x7 Meter House DWG File
Description
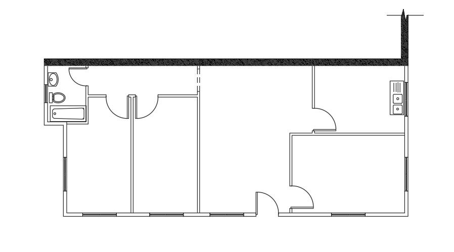
Kitchen And Toilet Layout show a 16x7 meter size. Kitchen And Toilet Layout include 3 bedrooms, a living room, kitchen, dining area, and staircase is available. Kitchen And Toilet Plan Available in this DWG File. thank you for downloading the AutoCAD drawing file and other CAD program files from our website. Visit CADBULL.COM Site.
Uploaded by:
K.H.J
Jani
