17x12 Meter House Beam Plan Of House Building DWG File
Description
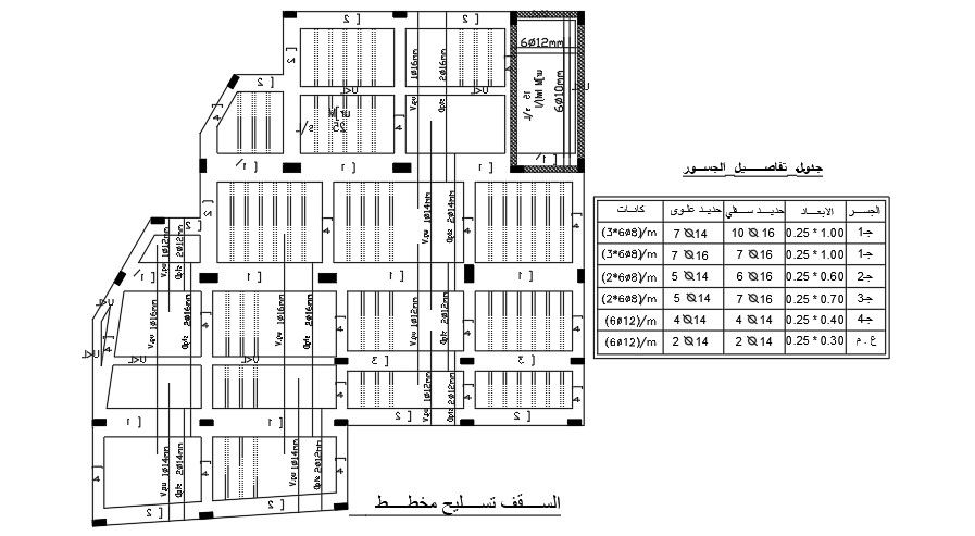
The Beam plan AutoCAD drawing shows beam detail 0.20x0.30 foundation size, and a total 20x10 meter plot size. The main longitudinal reinforcement of the composite columns consists of steel structural detail in the DWG file. Thank you for downloading the AutoCAD drawing file and other CAD program files from our website.
Uploaded by:
K.H.J
Jani

