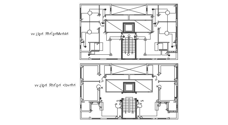
Electrical Plan Of Sixth And Seventh Floor Apartment Plan AutoCAD File
Description
Electric Plan Of Sixth And Seventh Floor Apartment Plan layout plan CAD drawing showsSixth And Seventh Floor Apartment Plan which is ceiling lights, and wiring connection detail. Electric Plan Of house electrical plan drawing DWG file. Thank you for downloading the AutoCAD drawing file and other CAD program files from our website. Visit CADBULL.COM Site.
Uploaded by:
K.H.J
Jani

