20x10 Meter Third Floor Center Line Plan Apartment Layout
Description
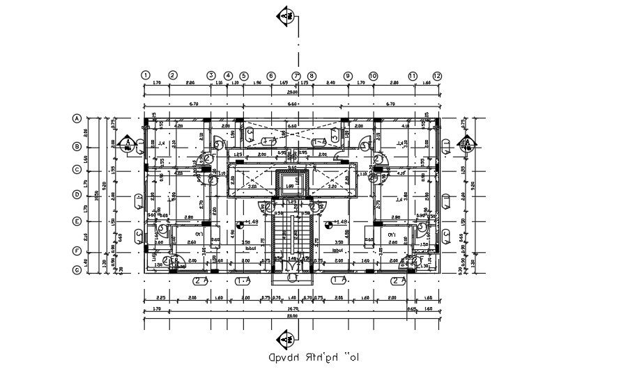
Third Floor Apartment Center Line Plan layout shows a 20x10 meter size. Third Floor Apartment Center Line Plan Layout includes column placement, 2 bedrooms, living room, kitchen, dining area, and staircase is available. centerline plan is also available in this file. Third Floor Apartment Center Line Plan dimensions are in a meter. Thank you for downloading the AutoCAD drawing file and other CAD program files from our website. Visit CADBULL.COM Site.
Uploaded by:
K.H.J
Jani

