30x28 Meter Apartment First Floor Center Line Plan Layout
Description
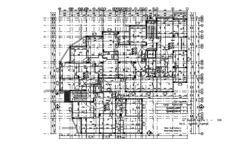
Apartment First Floor Center Line Plan layout shows a 30x28 meter size. Apartment First Floor Center Line Plan Layout includes column placement, 2 bedrooms, living room, kitchen, dining area, and staircase is available. centerline plan is also available in this file. Apartment First Floor Center Line Plan dimensions are in a meter. Thank you for downloading the AutoCAD drawing file and other CAD program files from our website. Visit CADBULL.COM Site.

Uploaded by:
Eiz
Luna

