230x250 mm Column Plan And Section Cad Layout
Description
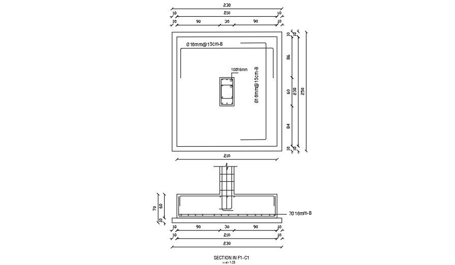
230x250 mm Column Plan And Section drawing presented in this AutoCAD file. this file consists of column design and structure detail with detailed dimensions and specifications in this file. this can be used by architects and engineers. Download this 2d AutoCAD drawing file.
Uploaded by:
K.H.J
Jani
