Kitchen And Toilet Layout Of 15x14 Meter House DWG File
Description
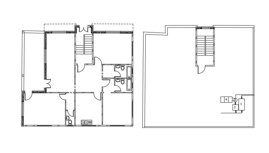
Kitchen And Toilet Layout Of House Layout DWG File. Kitchen And Toilet Layout Of House include plumbing Detail Of Kitchen And Toilet Detail with sizes. Connection details show in this AutoCAD File. Thank you for downloading the AutoCAD drawing file and other CAD program files from our website. Visit CADBULL.COM Site.
File Type:
DWG
File Size:
86 KB
Category::
Dwg Cad Blocks
Sub Category::
Autocad Plumbing Fixture Blocks
type:
Free
Uploaded by:
K.H.J
Jani

