Column Footing Plan Of Apartment AutoCAD File
Description
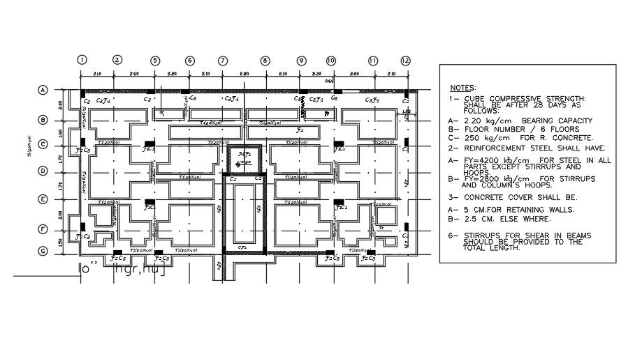
The foundation plan AutoCAD drawing shows column footing detail 2X2 foundation size, and a total 10x10 meter plot size. The main longitudinal reinforcement of the composite columns consists of steel structural detail in the DWG file. Thank you for downloading the AutoCAD drawing file and other CAD program files from our website.
Uploaded by:
K.H.J
Jani
