3 BHK Apartment Terrace Plan AutoCAD File
Description
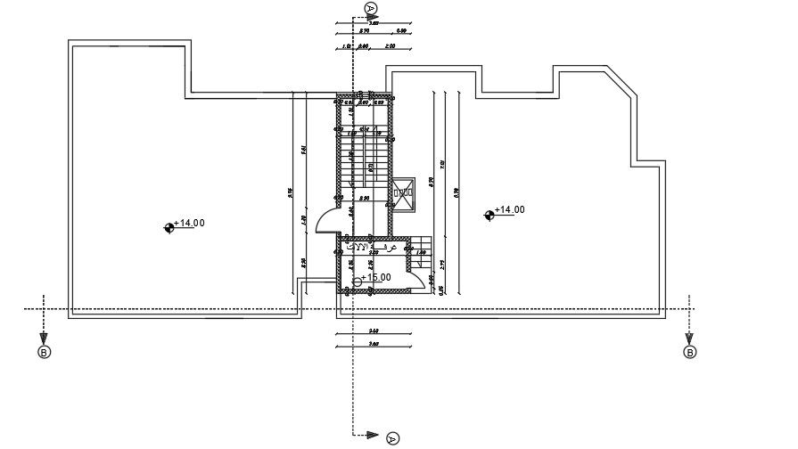
The Apartment Terrace Floor Plan design layout shows a 3 BHK Apartment. Apartment Terrace Floor Plan dimensions are in a meter. Sloping detail is available. Thank you for downloading the AutoCAD drawing file and other CAD program files from our website. Visit CADBULL.COM Site.
Uploaded by:
K.H.J
Jani

