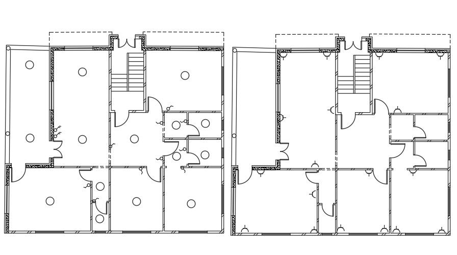
An electrical layout of the 15x15m home plan
Description
An electrical layout of the 15x15m home plan is given in this AutoCAD file. This is a single story house building. The living room, master bedroom with the attached toilet, kid’s room with the attached toilet, store room, guest room, common bathroom, and kitchen are available. For more details download the AutoCAD file from our website.
File Type:
DWG
File Size:
95 KB
Category::
Electrical
Sub Category::
Electrical Automation Systems
type:
Free
Uploaded by:

