8x16m architecture house plan drawing
Description
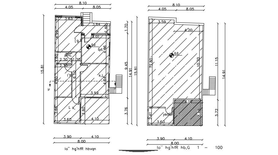
8x16m architecture house plan drawing is given in this AutoCAD file. This is a single story house building. The living room, master bedroom, kid’s room, store room, kitchen, and common bathroom are available. For more details download the AutoCAD file from our website.
Uploaded by:

