14x16m second and third floor house plan
Description
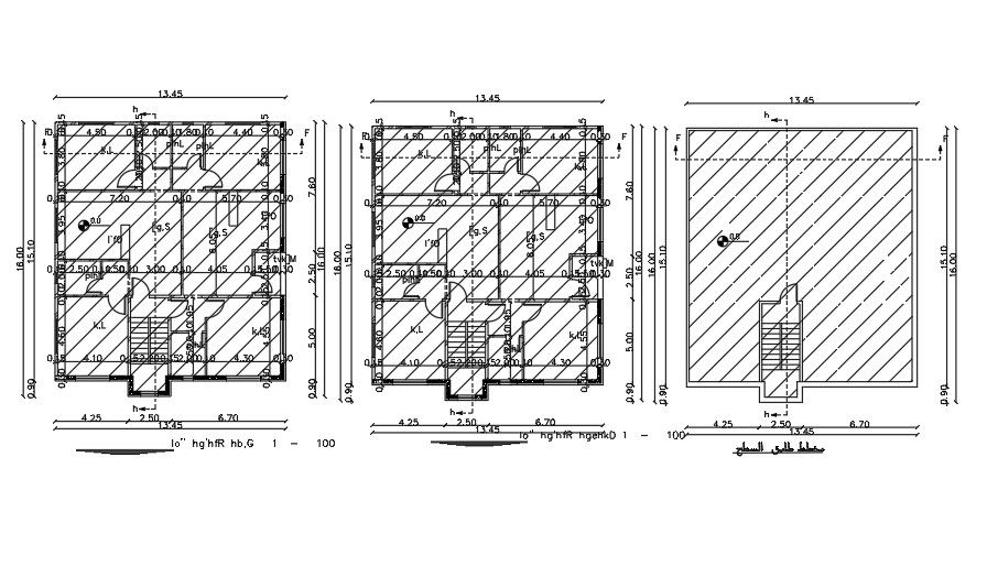
14x16m second and third floor house plan is given in this file. This is G+ 2 house building. In this house, two side main doors are available. The living room, kitchen, sit out, store room, master bedroom with the attached toilet, guest room, kid’s room, and common bathroom are available. For more details download the AutoCAD file from our website.
Uploaded by:

