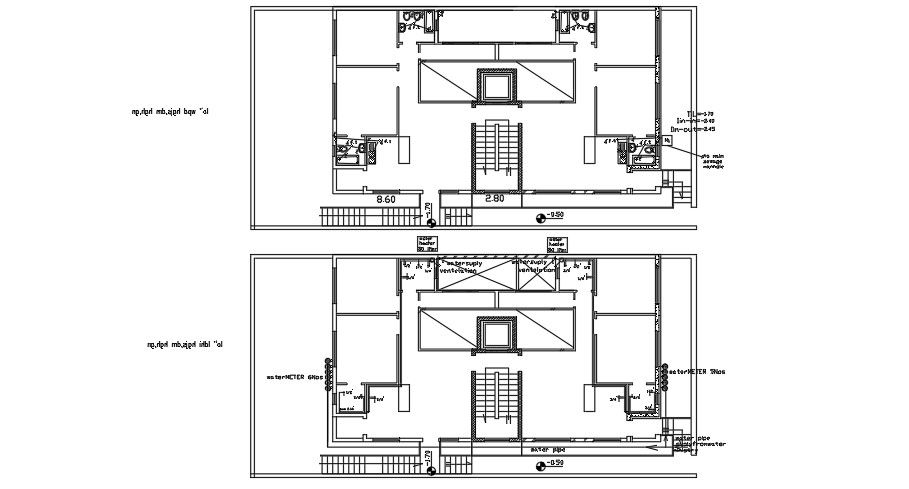
25x10m ground floor house plan of the water line connections
Description
25x10m ground floor house plan of the water line connections are given in this AutoCAD file. Two bathrooms are available on each house. Water lines are provided for the kitchen. For more details download the AutoCAD file from our website.
Uploaded by:
