10x8m single story house plan plot layout download now
Description
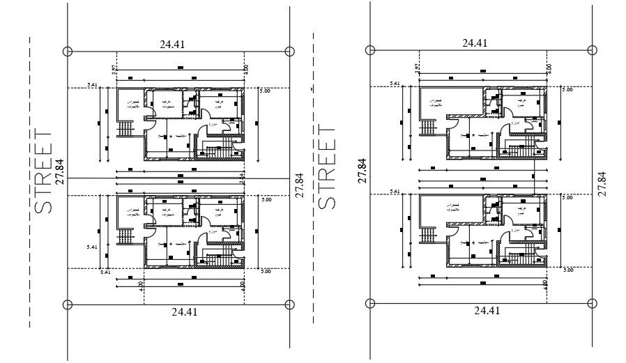
10x8m single story house plan plot layout is given in this model. This is a 1bhk house plan. The living room, master bedroom, kitchen, store room, family lounge area, and common bathroom are available. For more details download the AutoCAD drawing file from our website.
Uploaded by:

