Architecture 16x10m House Furniture Layout CAD Drawing

Architecture 16x10m House Furniture Layout CAD Drawing
Profile

Uploaded by:

Meera

Description
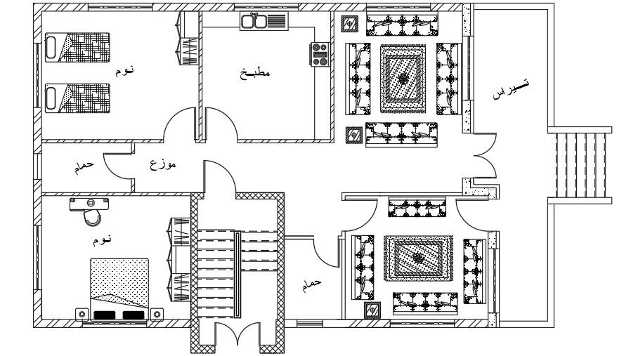
The furniture’s layout of the 16x10m architecture house plan drawing is given in this AutoCAD model. The living room, kitchen, dining area, master bedroom, kid’s room, and common bathroom are available. For more details download the AutoCAD drawing file from our website.
Profile

Uploaded by:

Meera

find Latest

Related Files