16x10m architecture house plan drawing download now
Description
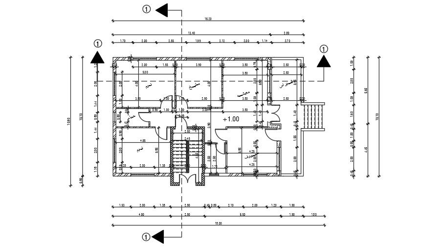
16x10m architecture house plan drawing is given in this AutoCAD model. The living room, kitchen, dining area, master bedroom, kid’s room, and common bathroom are available. For more details download the AutoCAD drawing file from our website.
Uploaded by:

