11x12m house plan AutoCAD 2D drawing download now
Description
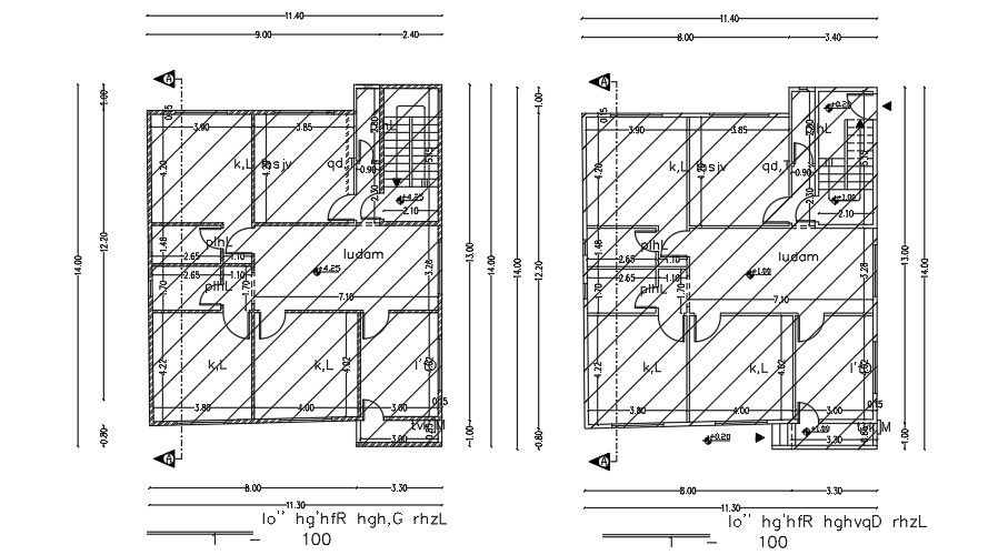
11x12m house plan AutoCAD 2D drawing is given in this file. This is G+ 1 house building. The living room, kitchen, sit out, master bedroom, kid’s room, store room, and common bathroom are available. For more details download the AutoCAD drawing file from our website.
Uploaded by:

