19x18m ground floor apartment plan download now
Description
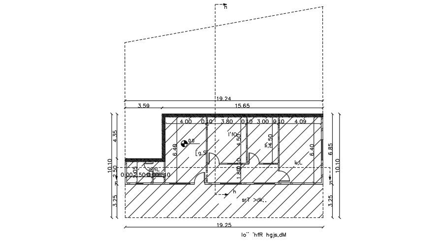
19x18m ground floor apartment plan is given in this model. This is a G+ 3 house building. On this ground floor, the control room, electrical room, and car parking areas are available. For more details download the AutoCAD drawing file from our website.
Uploaded by:

