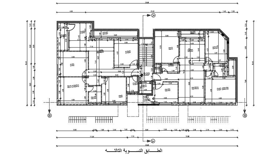
27x13 Meter First Floor Apartment Plan AutoCAD File
Description
27x13 Meter residential ground floor Apartment plan is given in this AutoCAD model. This is a G+ 6 house building. The living room, kitchen, dining area, family lounge, master bedroom, guest room, kid’s room, and two common bathrooms are available. For more details download the AutoCAD drawing file from our website.
Uploaded by:
K.H.J
Jani
