15x18 Meter residential House Plan CAD layout
Description
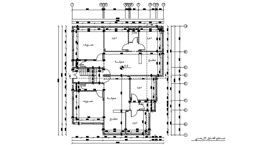
15x18 Meter residential ground floor house plan is given in this AutoCAD model. This is a G+ 1 house building. The living room, kitchen, dining area, family lounge, master bedroom, guest room, kid’s room, and two common bathrooms are available. For more details download the AutoCAD drawing file from our website.
Uploaded by:
K.H.J
Jani

