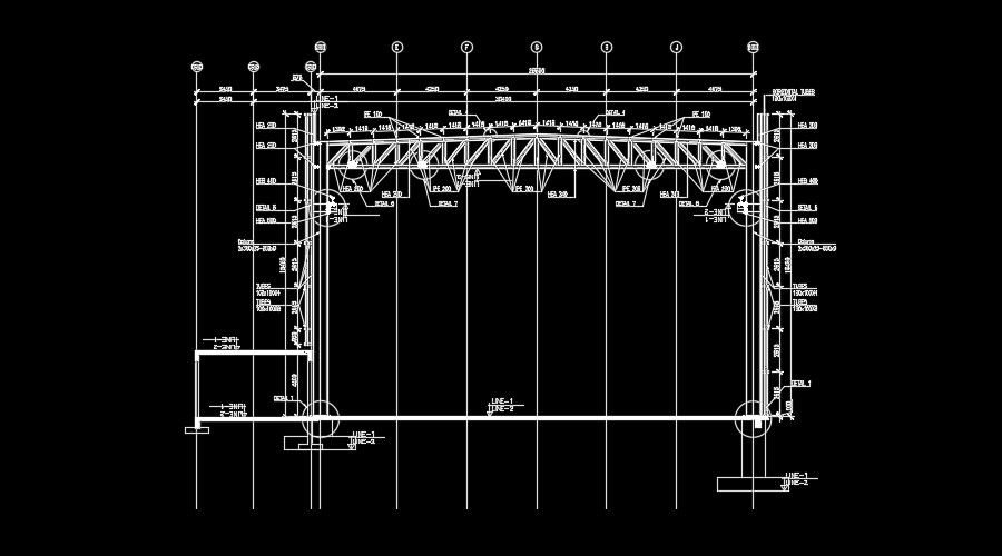
26m length of the industrial building truss drawing
Description
26m length of the industrial building truss drawing is given in this AutoCAD model. The channel sizes are mentioned in this drawing. For more details download the AutoCAD 2D drawing file for free.
Uploaded by:

