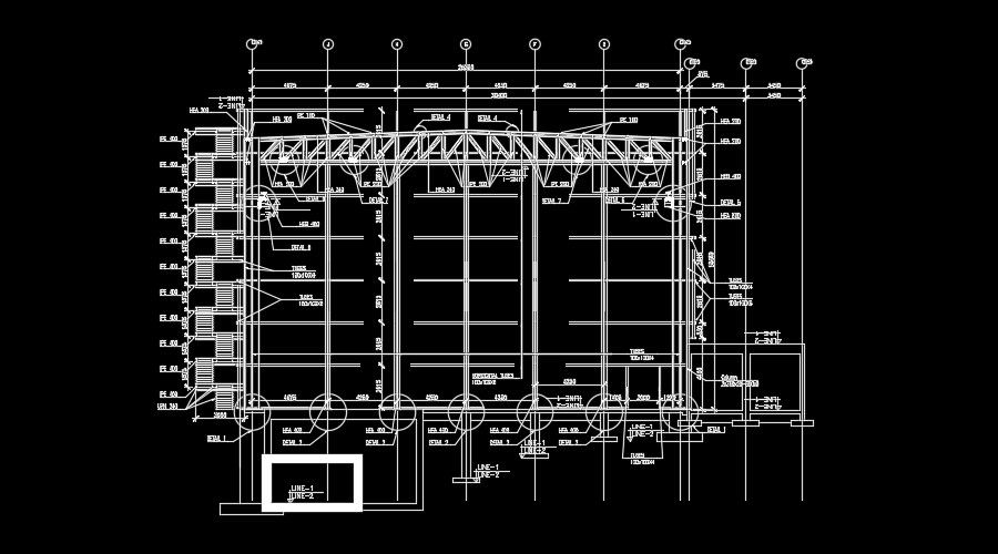
26m length of the industrial building structural drawing is given in this AutoCAD model
Description
26m length of the industrial building structural drawing is given in this AutoCAD model. The beam, column, and truss details are given. The channel sizes are mentioned in this drawing. For more details download the AutoCAD 2D drawing file for free.
Uploaded by:

