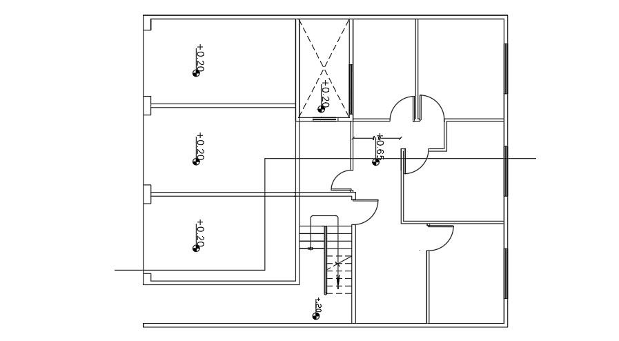
12x15m ground floor AutoCAD house plan layout drawing

12x15m ground floor AutoCAD house plan layout drawing
Profile

Uploaded by:

Meera

Description
12x15m ground floor AutoCAD house plan layout drawing is given in this file. This is G+ 2 house building. For more details download the AutoCAD drawing file.
Profile

Uploaded by:

Meera

find Latest

Related Files

WhatsApp Chat