An electrical layout of the home plan AutoCAD File
Description
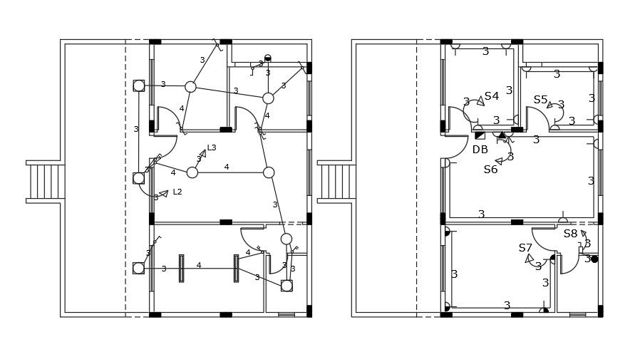
Electrical Plan Of House Plan layout plan CAD drawing shows House Plan which is ceiling lights and wiring connection detail. Electric Plan Of house electrical plan drawing DWG file. Thank you for downloading the AutoCAD drawing file and other CAD program files from our website. Visit CADBULL.COM Site.
Uploaded by:
K.H.J
Jani
