Modern 12x17m House Furniture Layout DWG AutoCAD Plan
Description
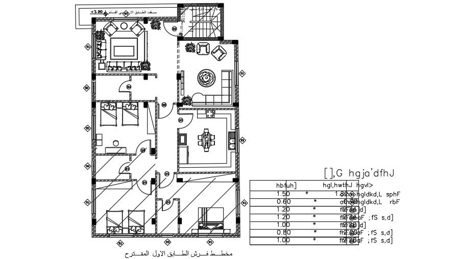
The furniture’s layout of the 12x17m house plan AutoCAD drawing model is given. This is G+ 1 house building. The living room, kitchen, family lounge area, master bedroom with the attached toilet, kid’s room, guest room, and two common bathrooms are available. For more details download the AutoCAD file.
Uploaded by:
