20x15 Meter Apartment Second Floor Plan CAD DWG File
Description
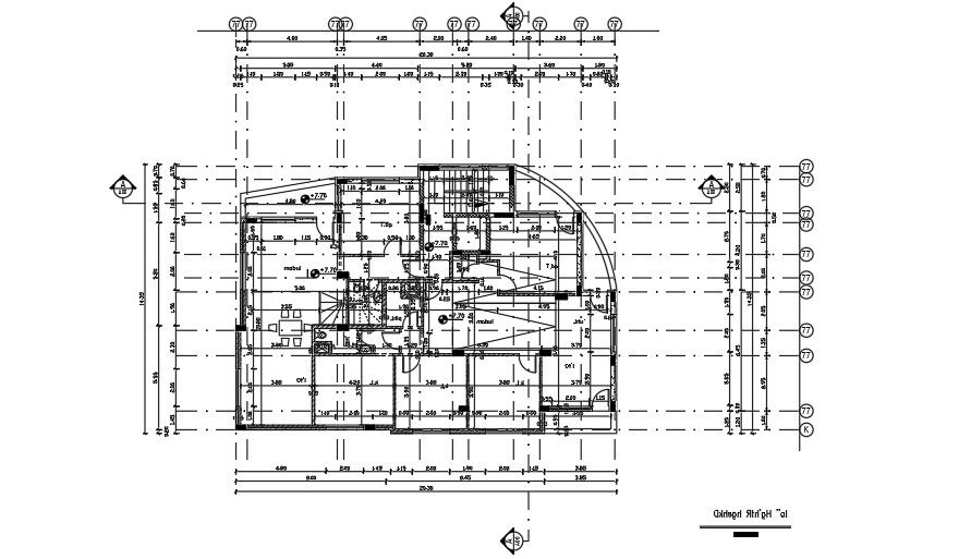
The apartment's Second Floor Plan layout shows a 20x15 meter size. Apartment Second Floor Plan Layout includes column placement, 4 bedrooms, living room, kitchen, dining area, and staircase is available. centerline plan is also available in this file. Apartment First Floor Plan dimensions are in a meter. Thank you for downloading the AutoCAD drawing file and other CAD program files from our website. Visit CADBULL.COM Site.
Uploaded by:
K.H.J
Jani

