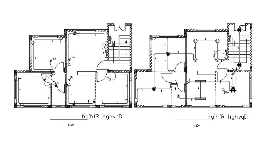
13x9m house plan of the electrical switch and light location drawing
Description
13x9m house plan of the electrical switch and light location drawing is given in this AutoCAD model. This is a single story building. This is a 2bhk house plan. The living room, kitchen, family lounge area, master bedroom, kid’s room, and common bathroom are available. For more details download the AutoCAD file.
Uploaded by:

