A section view of the 10x15m house building drawing
Description
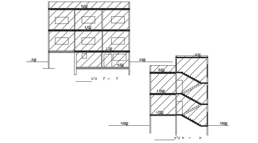
A section view of the 10x15m house building drawing is given in this AutoCAD model. The total height of the building is 10.5m. This is G+ 2 house building. The living room, master bedroom, kitchen, two kid’s room, guest room, and common bathroom are available. For more details download the AutoCAD file.
File Type:
DWG
File Size:
178 KB
Category::
Structure
Sub Category::
Section Plan CAD Blocks & DWG Drawing Models
type:
Free
Uploaded by:

