73x18m mosque slab detail drawing download now
Description
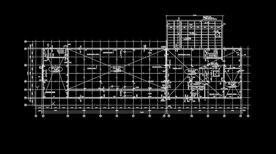
73x18m mosque slab detail drawing is given in this AutoCAD file. Control joint, construction joint, isolation joint, and 200mm thickness of the grade slab is provided. Measurement details are given. For more details download the AutoCAD drawing file from our website.
Uploaded by:

