65x44m mosque load applying drawing download now

65x44m mosque load applying  drawing download now
Profile

Uploaded by:

Meera

Description
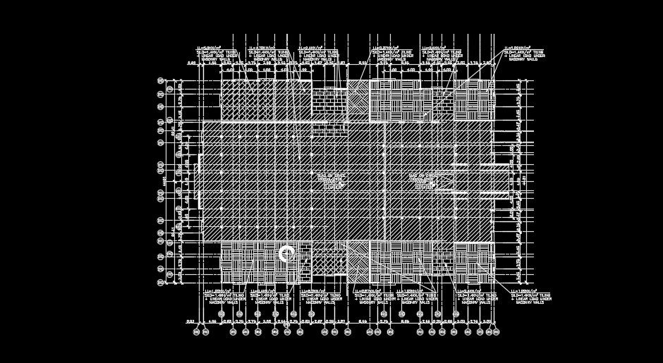
65x44m mosque load applying detail drawing is given in this file. The ration of the each load has been mentioned. Thickness of the solid slab is 140mm. Live load, slid load, and dead loads are mentioned. For more details download the AutoCAD drawing file from our website.
Profile

Uploaded by:

Meera

find Latest

Related Files

WhatsApp Chat