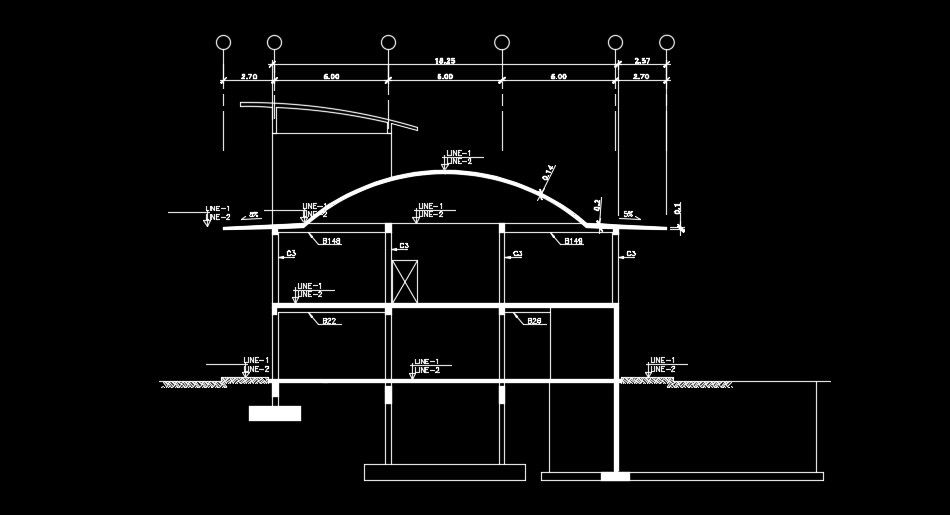
18m length of the mosque foundation to slab section
Description
18m length of the mosque foundation to slab section view is given in this AutoCAD file. Measurement details are mentioned in this model. For more details download the AutoCAD drawing file from our website.
Uploaded by:

