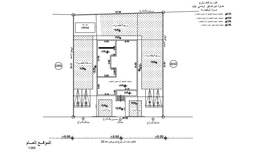
27x32m residential site layout drawing
Description
27x32m residential site layout drawing is given in this AutoCAD model. The length and breadth of the house plan is 12m and 17m respectively. The gardens, and car parking is provided. For more details download the AutoCAD drawing file from our website.
Uploaded by:

